Casa semindipendente in vendita

Barbania, Borgata Fandaglia
€ 169.000
Prezzo aggiornato
6 locali 6 locali
305 Mq 305 Mq
3 bagni 3 bagni

Casa semindipendente in vendita

Barbania, Borgata Fandaglia

Descrizione annuncio

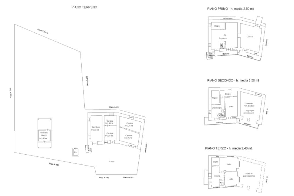
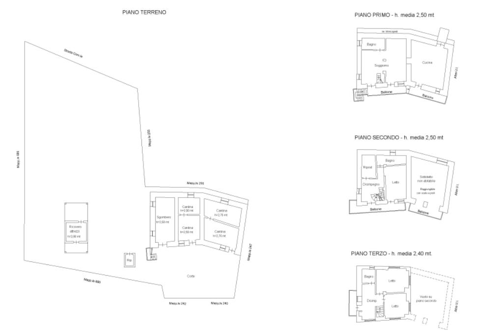
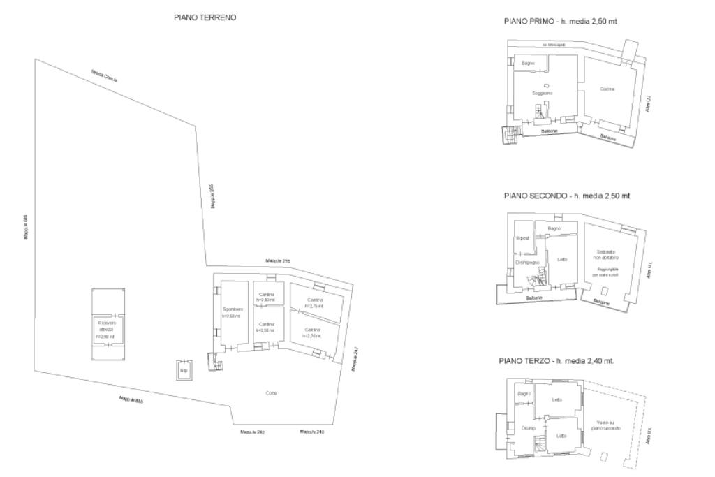
BORGATA FANDAGLIA - In posizione tranquilla e soleggiata, casa libera su tre lati con ampio giardino privato.

Al Piano Terra, Soggiorno doppio, ampia Cucina abitabile con forno a legna in mattoni refrattari e bagno con doccia.

Collegato tramite scala interna al Piano Primo una Camera da Letto matrimoniale, Cabina armadi e Bagno con doccia. Balcone sul giardino e vista montagne.

Al Piano Sottotetto abitabile, coibentato nelle pareti e nel tetto con certificazione di posa materiali, disimpegno, due Camere da Letto e terzo bagno. Balcone.

Di fianco alla Camera matrimoniale, una grande travata collegabile e recuperabile ai fini abitativi, riuscendo così ad avere una camera seconda Camera da letto al Piano Primo.

Al Piano Seminterrato e accessibili sempre attreverso il cortile/giardino privato, tre locali ad uso deposito e magazzino.

Il riscaldamento è gestito dalla caldaia a metano, già a condensazione ed è presente già la predisposizione idraulica per l'installazione di una termostufa alimentata a legna o a pellet.

Casa subito pronta e ottima per la sua indipendenza.

Mostra tutto

Nelle vicinanze

Trasporto pubblico Trasporto pubblico
Barbania
Barbania
350 m
Barbania (Carabinieri)
Barbania (Carabinieri)
470 m
Scuole Scuole
Scuole
1,7 Km
Farmacia Farmacia
Farmacia Ruggeri
320 m
Farmacia
1,6 Km
Bar Bar
Al tirabusun
1,6 Km
Ristoranti Ristoranti
MMM
2,6 Km
Mostra tutto

Caratteristiche

Rif.:
61114639
Piano:
3 di 3 (Piano su più livelli)
Posti auto:
3
Balconi:
2
Camere da letto:
3
Arredamento:
Assente
Mostra tutto
Prezzo Prezzo
€ 169.000
Rata mutuo Rata mutuo
€ 797 / mese
Spese annue Spese annue
€ 0
Proponi il tuo prezzoProponi il tuo prezzo

Classe Energetica

Questo immobile è esente da classe energetica
Anno di costruzione:
1967
Riscaldamento:
Autonomo
Tipo impianto:
A radiatori
Tipo alimentazione:
Metano

Prezzo ridotto di €1 (3%%)

Ti interessa visionare l'immobile?

Fissa un appuntamento  Fissa un appuntamento

Richiedi informazioni

Clicca su Leggi per aprire l'informativa
* Questi campi sono obbligatori

Calcola il tuo mutuo

Semplice e senza impegno
Anticipo

( % )
Mutuo

( % )

pochi semplici passi

inserisci i tuoi dati
Questionario completato
Grazie per aver richiesto un appuntamento senza impegno con un nostro Consulente del Credito e Assicurativo.

Hai inserito correttamente tutti i dati necessari e a breve riceverai una e-mail con un link da convalidare per inviare i tuoi dati.
Affiliato
Gvr Immobiliare Sas
Via Circonvallazione, 23/A 10076 Nole (TO)

Il nostro staff


  • Guido Lo Drago
    Affiliato

  • Daniela Cat Genova
    Coordinatrice

  • Francesco Uneddu
    Collaboratore
Via Circonvallazione, 23/A 10076 Nole (TO)
Zona: Nole-San Carlo-Mathi-Barbania-Vauda
Mostra su mappa
Affiliato
Gvr Immobiliare Sas
Via Circonvallazione, 23/A 10076 Nole (TO)

2026 Tecnocasa Franchising S.p.A. - P. IVA 08365160152 - Via Monte Bianco 60/A 20089 Rozzano (MI). Ogni agenzia ha un proprio titolare ed è autonoma. Privacy policy | Policy utilizzo | Cookie policy