Trilocale in vendita

Nole, Via Martiri della Libertà
€ 189.000
3 locali 3 locali
92 Mq 92 Mq
1 bagno 1 bagno

Trilocale in vendita

Nole, Via Martiri della Libertà

Descrizione annuncio

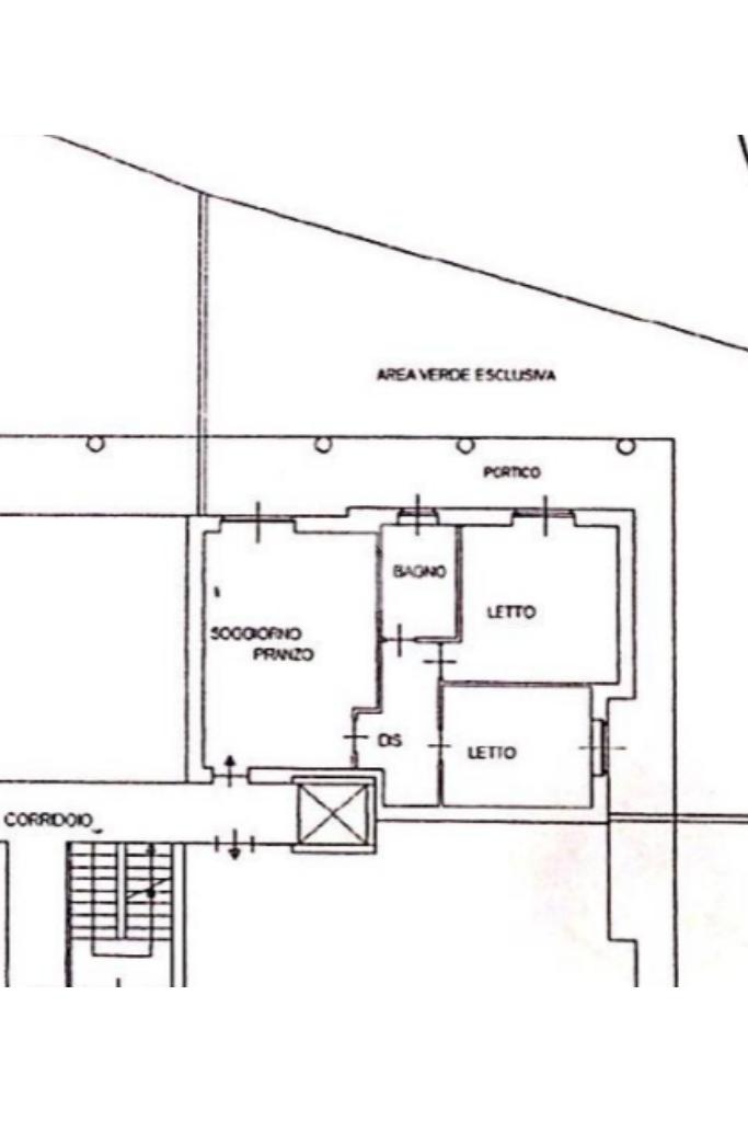
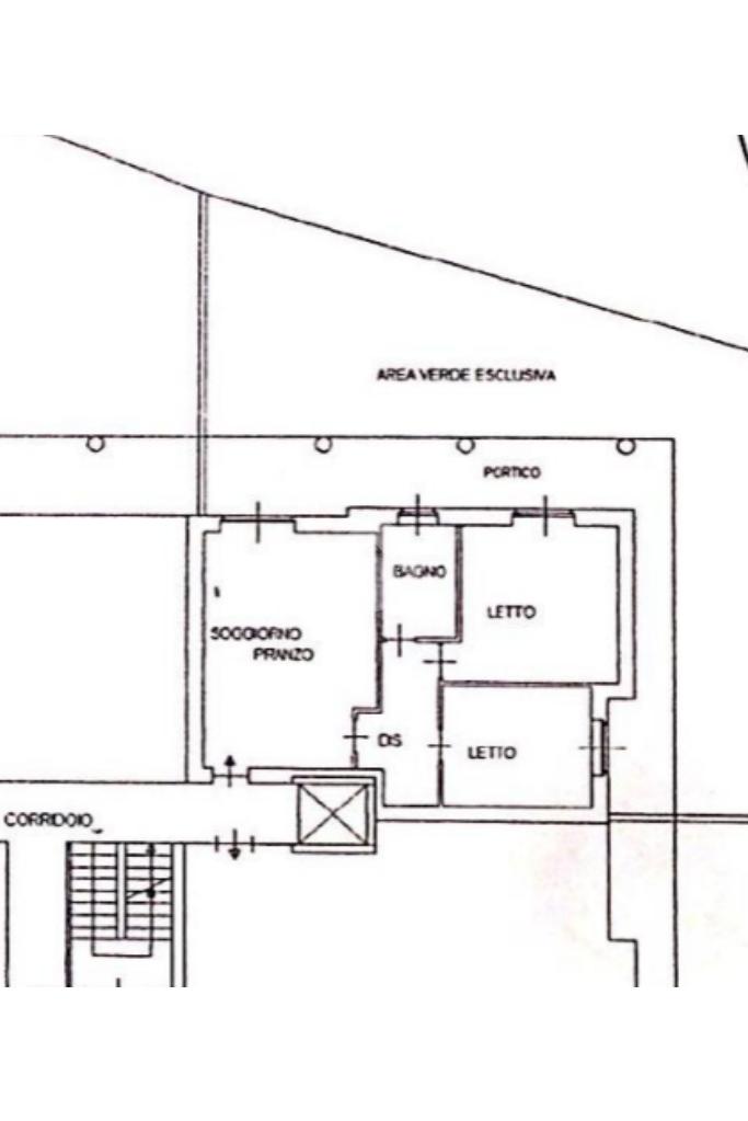
In recente palazzina del 2015, appartamento con giardino privato, piano terra e in assenza di barriere architettoniche.

L'ingresso è living sul Soggiorno con Angolo Cottura, Disimpegno, Due Camere, Bagno e armadio a muro allestito a Lavanderia.

Tutte le camere affacciano sul giardino privato e risultano molto luminose grazie all'ottima esposizione dell'immobile a Sud-Ovest, ciò consente di godere di molta luce naturale e così avere un vantaggioso ausilio al riscaldamento anche nelle belle giornate più fredde.

Il riscaldamento è a pavimento, gli infissi esterni sono in legno con il doppio vetro, i condizionatori sono dotati anche della funzione pompa di calore e gestiti tramite applicazione per impostarli anche quando si è lontani da casa ed è presente la predisposizione per l'impianto di antifurto.

Nel giardino è stato predisposto l'impianto di irrigazione.

Al Piano Interrato completano la proprietà la cantina e l'ampio box auto che sono direttamente collegati all'interno del condominio attraverso l'ascensore ed il vano scala.

Ottimo immobile per chi ha necessità di non avere barriere architettoniche o per chi semplicemente è amante dei momenti all'aria aperta.

Mostra tutto

Nelle vicinanze

Trasporto pubblico Trasporto pubblico
Villanova - Grosso
Villanova - Grosso
1,7 Km
Ciriè
Ciriè
2,5 Km
Nole (semaforo Vauda)
Nole (semaforo Vauda)
610 m
Ciriè (v. Lanzo 139)
Ciriè (v. Lanzo 139)
960 m
Ricariche auto elettriche Ricariche auto elettriche
Bennet Centro Commerciale Le Alpi | BeCharge
1,7 Km
Scuole Scuole
ciac formazione
1,8 Km
Scuola Elementare Beppe Fenoglio
2,4 Km
I.I.S. “Fermi- Galilei”
2,5 Km
Scuola Primaria Don Bosco
2,6 Km
Scuola Secondaria di I Grado “A. Viola”
3,0 Km
Farmacia Farmacia
San Vito
400 m
Paschero
440 m
San Bernardo
1,6 Km
Parafarmacia Bennet
1,7 Km
Farmacia dei lauri
1,7 Km
Ospedali Ospedali
Ospedale Civile di Ciriè
2,0 Km
Supermercati Supermercati
CRAI
250 m
Supermercato CRAI
2,6 Km
Negozi Negozi
I Monelli
250 m
L'angolo di Lory
340 m
CRAI Everydaymarket
1,2 Km
Benzo
1,8 Km
Bar Bar
Massa Micon
1,7 Km
Imperiale
3,0 Km
Ristoranti Ristoranti
Il Duca Bianco
590 m
Quattro Mori
1,7 Km
L'Oasi
2,4 Km
Ristorante Pizzeria Fontana
2,5 Km
Pizzeria Le Braci
2,6 Km
Mostra tutto

Caratteristiche

Rif.:
61196145
Piano:
Terra di 2 con ascensore
Totale piani:
2
Box:
1
Camere da letto:
2
Arredamento:
Assente
Mostra tutto
Prezzo Prezzo
€ 189.000
Rata mutuo Rata mutuo
€ 898 / mese
Spese annue Spese annue
€ 1.600
Proponi il tuo prezzoProponi il tuo prezzo
Immobile valutato con T·Valuta

Classe Energetica

A1
A1
A1
A1
A1
A1
A1
A1
A1
EP globale non rinnovabile:
109.50 kW h/m² anno
EP globale rinnovabile:
0.00 kW h/m² anno
EP invernale del fabbricato:
EP estiva del fabbricato:
Anno di costruzione:
2015
Riscaldamento:
Centralizzato
Tipo impianto:
A pavimento
Tipo alimentazione:
Metano

Ti interessa visionare l'immobile?

Fissa un appuntamento  Fissa un appuntamento

Richiedi informazioni

Clicca su Leggi per aprire l'informativa
* Questi campi sono obbligatori

Calcola il tuo mutuo

Semplice e senza impegno
Anticipo

( % )
Mutuo

( % )

pochi semplici passi

inserisci i tuoi dati
Questionario completato
Grazie per aver richiesto un appuntamento senza impegno con un nostro Consulente del Credito e Assicurativo.

Hai inserito correttamente tutti i dati necessari e a breve riceverai una e-mail con un link da convalidare per inviare i tuoi dati.
Affiliato
Gvr Immobiliare Sas
Via Circonvallazione, 23/A 10076 Nole (TO)

Il nostro staff


  • Guido Lo Drago
    Affiliato

  • Daniela Cat Genova
    Coordinatrice

  • Francesco Uneddu
    Collaboratore
Via Circonvallazione, 23/A 10076 Nole (TO)
Zona: Nole-San Carlo-Mathi-Barbania-Vauda
Mostra su mappa
Affiliato
Gvr Immobiliare Sas
Via Circonvallazione, 23/A 10076 Nole (TO)

2026 Tecnocasa Franchising S.p.A. - P. IVA 08365160152 - Via Monte Bianco 60/A 20089 Rozzano (MI). Ogni agenzia ha un proprio titolare ed è autonoma. Privacy policy | Policy utilizzo | Cookie policy