Trilocale in vendita

San Carlo Canavese, Strada San Francesco al Campo - Sedime
€ 260.000
3 locali 3 locali
108 Mq 108 Mq
1 bagno 1 bagno

Trilocale in vendita

San Carlo Canavese, Strada San Francesco al Campo - Sedime

Descrizione annuncio

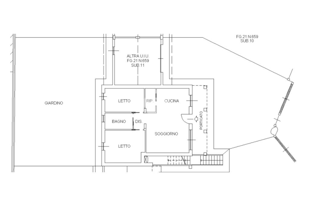
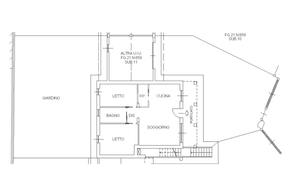
BORGATA SEDIME - In complesso residenziale del 2010, appartamento in bifamigliare al Piano Terra, senza barriere architettoniche con cortile e giardino privati.

L'accesso alla proprietà è sia carrabile che pedonale e il comodo vialetto conduce sia all'abitazione che all'autorimessa che supera i 20 mq.

L'ingresso è regolato dal portoncino blindato e si apre sul Soggiorno con Cucina a vista, questo ambiente risulta essere molto luminoso grazie alle ampie vetrate che si affacciano sul giardino e sul portico di ingresso dove è possibile allestire la zona relax estiva.

Il disimpegno divide la zona giorno dalla zona notte dove si trovano la Camera da Letto matrimoniale, la Cameretta utile anche come Studio e il Bagno finestrato con doccia.

Il giardino privato retrostante è un'area molto riservata con piscina privata e patio estivo, collegato sia all'abitazione che all'autorimessa.

Ideale per chi vuole usufruire di un comfort abitativo di alto livello, in zona tranquilla ma comoda alle strade di alta percorrenza e a poca distanza dall'aeroporto di Torino-Caselle.

Mostra tutto

Nelle vicinanze

Trasporto pubblico Trasporto pubblico
San Maurizio Canavese
San Maurizio Canavese
2,2 Km
Ciriè
Ciriè
2,7 Km
Fraz.Sedime
Fraz.Sedime
10 m
San Francesco al Campo (Sedime)
San Francesco al Campo (Sedime)
50 m
Scuole Scuole
Scuola dell'Infanzia e Primaria “B. Ciari”
2,0 Km
Scuola Secondaria di I Grado “A. Viola”
2,3 Km
Scuola elementare
2,4 Km
Scuola Elementare Beppe Fenoglio
2,5 Km
Scuola Primaria "Pagliero"
2,7 Km
Farmacia Farmacia
Farmacia
1,2 Km
Terrone
2,0 Km
Farmacia Spinerano
2,3 Km
Sant'Agostino
2,4 Km
Farmacia De Magistris
2,6 Km
Ospedali Ospedali
Ospedale Civile di Ciriè
2,9 Km
Supermercati Supermercati
Crai EXTRA
1,4 Km
Supermercato CRAI
2,3 Km
Penny Market
2,6 Km
Lidl
2,7 Km
Bar Bar
Bar del Moro
1,8 Km
Imperiale
2,7 Km
Ristoranti Ristoranti
Aurora
1,9 Km
La Credenza
2,1 Km
Londrina
2,2 Km
Ristorante Pizzeria Fontana
2,3 Km
Cooperativa di consumo
2,4 Km
Mostra tutto

Caratteristiche

Rif.:
61205346
Piano:
Terra di 2
Totale piani:
2
Box:
1
Posti auto:
2
Camere da letto:
2
Mostra tutto
Prezzo Prezzo
€ 260.000
Rata mutuo Rata mutuo
€ 1.232 / mese
Spese annue Spese annue
€ 274
Proponi il tuo prezzoProponi il tuo prezzo
Immobile valutato con T·Valuta

Classe Energetica

B
B
B
B
B
B
B
B
B
EP invernale del fabbricato:
EP estiva del fabbricato:
Anno di costruzione:
2010
Riscaldamento:
Autonomo
Tipo impianto:
A pavimento
Tipo alimentazione:
Metano

Ti interessa visionare l'immobile?

Fissa un appuntamento  Fissa un appuntamento

Richiedi informazioni

Clicca su Leggi per aprire l'informativa
* Questi campi sono obbligatori

Calcola il tuo mutuo

Semplice e senza impegno
Anticipo

( % )
Mutuo

( % )

pochi semplici passi

inserisci i tuoi dati
Questionario completato
Grazie per aver richiesto un appuntamento senza impegno con un nostro Consulente del Credito e Assicurativo.

Hai inserito correttamente tutti i dati necessari e a breve riceverai una e-mail con un link da convalidare per inviare i tuoi dati.
Affiliato
Gvr Immobiliare Sas
Via Circonvallazione, 23/A 10076 Nole (TO)

Il nostro staff


  • Guido Lo Drago
    Affiliato

  • Daniela Cat Genova
    Coordinatrice

  • Francesco Uneddu
    Collaboratore
Via Circonvallazione, 23/A 10076 Nole (TO)
Zona: Nole-San Carlo-Mathi-Barbania-Vauda
Mostra su mappa
Affiliato
Gvr Immobiliare Sas
Via Circonvallazione, 23/A 10076 Nole (TO)

2026 Tecnocasa Franchising S.p.A. - P. IVA 08365160152 - Via Monte Bianco 60/A 20089 Rozzano (MI). Ogni agenzia ha un proprio titolare ed è autonoma. Privacy policy | Policy utilizzo | Cookie policy