Casa semindipendente in vendita

San Carlo Canavese, Borgata baima
€ 69.000
5 locali 5 locali
130 Mq 130 Mq
1 bagno 1 bagno

Casa semindipendente in vendita

San Carlo Canavese, Borgata baima

Descrizione annuncio

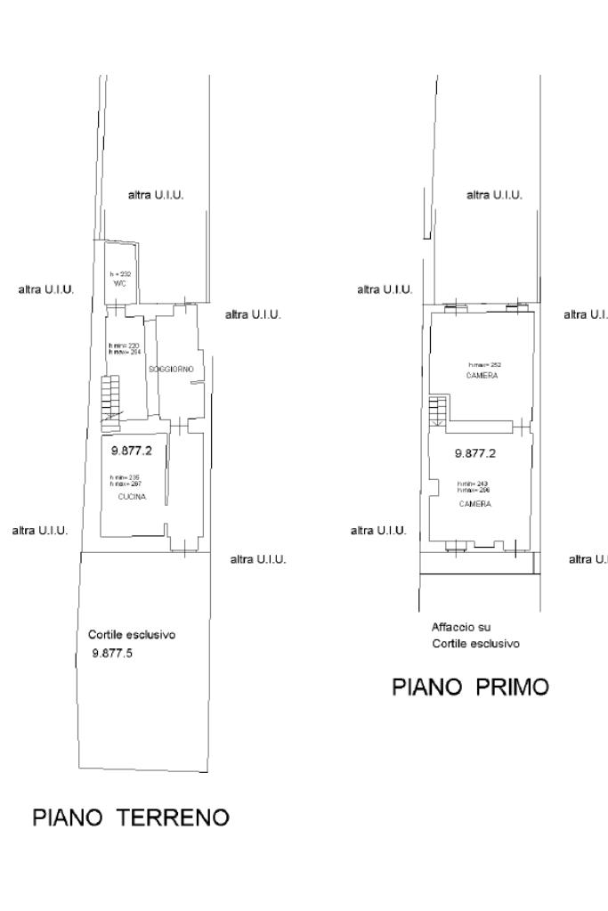
In tranquilla borgata, a tre minuti di auto dal centro di Cirié e Nole, casa semindipendente libera su due lati con giardino privato e disposta su due livelli abitativi oltre all'ampio sottotetto recuperabile ai fini abitativi.

Al Piano Terra Ingresso, Soggiorno, Cucina abitabile e Bagno.

Al Piano Primo, collegato tramite scala interna, due Camere e Balcone.

Alle spalle della casa, e rivolta verso il giardino dove è presente il passo carraio, una tettoia di circa 45 mq utile per il rimessaggio di camper, roulotte e furgoni oppure attraverso i permessi comunali per il recupero di ulteriori metri di abitazione.

Inoltre all'interno del cortile/giardino è presente un'autorimessa prefabbricata e costruita il lamiera, correttamente censita sia in Comune che in catasta fabbricati.

Mostra tutto

Nelle vicinanze

Trasporto pubblico Trasporto pubblico
Ciriè
Ciriè
1,1 Km
Ciriè (P.za Castello)
Ciriè (P.za Castello)
360 m
Ciriè (v. Braccini)
Ciriè (v. Braccini)
450 m
Ricariche auto elettriche Ricariche auto elettriche
Bennet Centro Commerciale Le Alpi | BeCharge
1,4 Km
Scuole Scuole
Scuola Elementare Beppe Fenoglio
740 m
Scuola dell'Infanzia e Primaria “B. Ciari”
950 m
Scuola elementare
980 m
ciac formazione
1,2 Km
Scuola Secondaria di I Grado “A. Viola”
1,3 Km
Farmacia Farmacia
Farmacia Spinerano
20 m
Farmacia
560 m
Eden
630 m
Sant'Agostino
660 m
Farmacia De Magistris
750 m
Ospedali Ospedali
Ospedale Civile di Ciriè
770 m
Supermercati Supermercati
Supermercato CRAI
250 m
Penny Market
1,8 Km
Lidl
2,1 Km
CRAI
2,8 Km
Negozi Negozi
CRAI Everydaymarket
1,3 Km
L'angolo di Lory
2,7 Km
I Monelli
2,7 Km
Bar Bar
Imperiale
1,6 Km
Ristoranti Ristoranti
L'Oasi
270 m
Ristorante Pizzeria Fontana
380 m
Cooperativa di consumo
1,1 Km
Tazebao
2,3 Km
Il Duca Bianco
2,4 Km
Mostra tutto

Caratteristiche

Rif.:
61132086
Totale piani:
2
Box:
1
Balconi:
1
Camere da letto:
2
Arredamento:
Assente
Mostra tutto
Prezzo Prezzo
€ 69.000
Rata mutuo Rata mutuo
€ 325 / mese
Spese annue Spese annue
€ 0
Proponi il tuo prezzoProponi il tuo prezzo

Classe Energetica

Questo immobile è esente da classe energetica
Anno di costruzione:
1930
Riscaldamento:
Autonomo
Tipo impianto:
A stufa
Tipo alimentazione:
Altro

Ti interessa visionare l'immobile?

Fissa un appuntamento  Fissa un appuntamento

Richiedi informazioni

Clicca su Leggi per aprire l'informativa
* Questi campi sono obbligatori

Calcola il tuo mutuo

Semplice e senza impegno
Anticipo

( % )
Mutuo

( % )

pochi semplici passi

inserisci i tuoi dati
Questionario completato
Grazie per aver richiesto un appuntamento senza impegno con un nostro Consulente del Credito e Assicurativo.

Hai inserito correttamente tutti i dati necessari e a breve riceverai una e-mail con un link da convalidare per inviare i tuoi dati.
Affiliato
Gvr Immobiliare Sas
Via Circonvallazione, 23/A 10076 Nole (TO)

Il nostro staff


  • Guido Lo Drago
    Affiliato

  • Daniela Cat Genova
    Coordinatrice

  • Francesco Uneddu
    Collaboratore

  • Andrea Ingenito
    Collaboratore
Via Circonvallazione, 23/A 10076 Nole (TO)
Zona: Nole-San Carlo-Mathi-Barbania-Vauda
Mostra su mappa
Affiliato
Gvr Immobiliare Sas
Via Circonvallazione, 23/A 10076 Nole (TO)

2025 Tecnocasa Franchising S.p.A. - P. IVA 08365160152 - Via Monte Bianco 60/A 20089 Rozzano (MI). Ogni agenzia ha un proprio titolare ed è autonoma. Privacy policy | Policy utilizzo | Cookie policy