Casa semindipendente in vendita

San Carlo Canavese, Località Sopetto
€ 237.000
Prezzo aggiornato
4 locali 4 locali
194 Mq 194 Mq
2 bagni 2 bagni

Casa semindipendente in vendita

San Carlo Canavese, Località Sopetto

Descrizione annuncio

Nelle immediate vicinanze della Piazza centrale del Paese servito da asili, scuole, esercizi commerciali, Poste, ecc..

Casa con cortile e ampio giardino adiacenti e privati, senza alcuna servitù di passaggio.

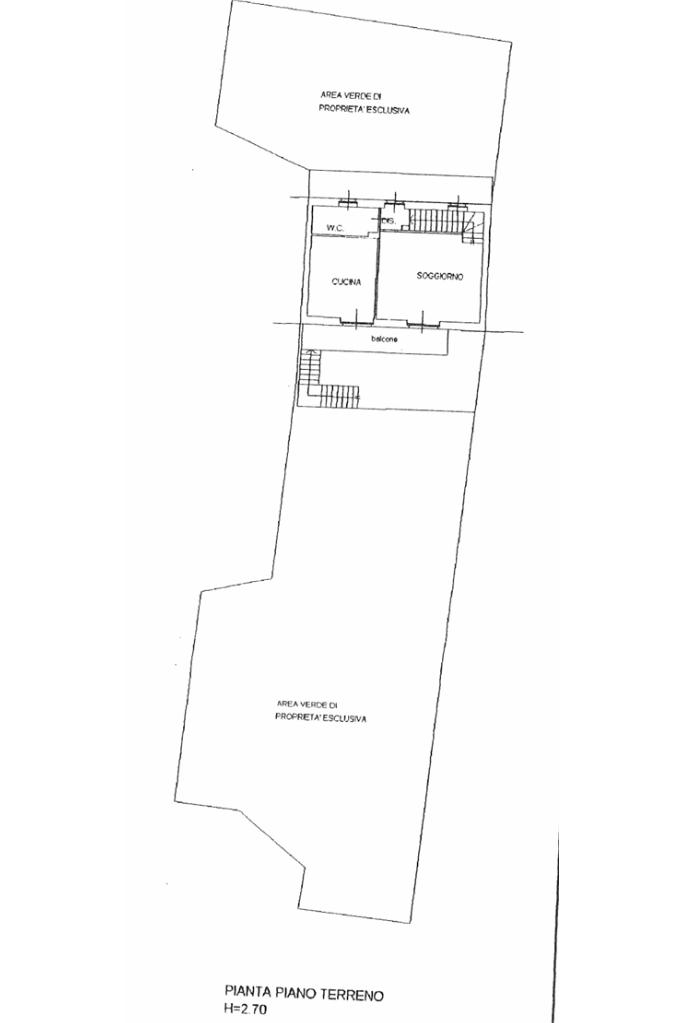
Completamente ristrutturata in tutte le sue parti, si compone al Piano Terra di Ingresso Living su Salone, Cucina Abitabile e Bagno;

il Salone e la Cucina sono serviti unitamente nella parte esterna dall'ampio balcone che affaccia nel lato Sud dell'immobile e sul giardino privato.

Al Piano Primo la zona notte interamente pavimentata con parquet è composta dal Disimpegno, due Camere da Letto, di cui una molto ampia dove volendo è possibile allestire una capiente cabina armadi, e il secondo Bagno.

La zona notte è fornita su entrambi i lati espositivi di balconi, rispettivamente uno rivolto al cortile ed uno sul giardino.

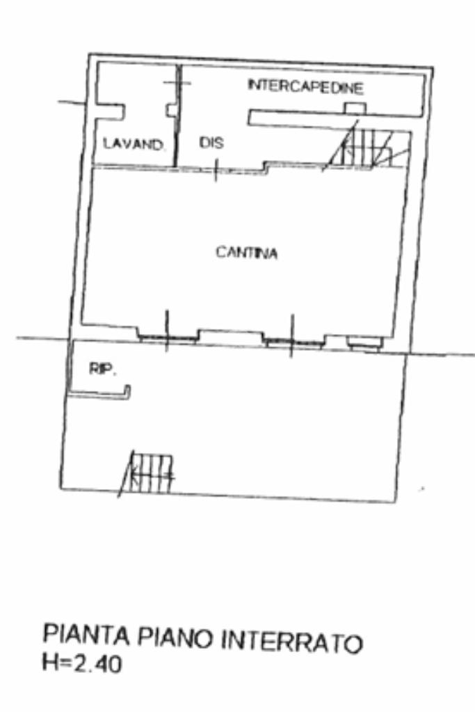
Il Piano Seminterrato, anch'esso collegato internamente dalla comoda scala, è composto dal Locale Lavanderia, la Cantina e un grande Vano, il giusto ambiente dove poter organizzare una Tavernetta, una palestra o uno Studio per chi ne avesse la necessità.

Peculiarità di questo piano è il vantaggio di poter godere di luce naturale grazie alle finestre e alle porte-finestre che affacciano su di un grazioso Patio pavimentato che conduce direttamente al giardino, consentendo in questo modo di poter fruire di questi locali come piccola depandance per ospitare amici o parenti.

Il riscaldamento è autonomo a metano gestito da una caldaia a condensazione di recente installazione.

Possibilità di costruire locale autorimessa di Mq. 30.

Immobile ideale per famiglie, per chi ha la necessità di avvicinare a sè genitori anziani garanetendo comunque un minimo di privacy ma non dovendo rinunciare alle agevolazoni fiscali per l'acquisto della prima casa.

Comodo per uno Studio Professionale adiacente alla propria residenza, avendo la possibilità di avere gli accessi separati per l'accoglienza di persone esterne al nucleo famigliare.

Immobile subito pronto da abitare, nessuna spesa condominiale e/o condivisa, ottima alternativa all'alloggio col vantaggio dell'indipendenza.

Volendo arredata.

Mostra tutto

Nelle vicinanze

Trasporto pubblico Trasporto pubblico
Ciriè
Ciriè
2,5 Km
Ciriè (v. Braccini)
Ciriè (v. Braccini)
1,7 Km
Ciriè (P.za Castello)
Ciriè (P.za Castello)
1,7 Km
Ricariche auto elettriche Ricariche auto elettriche
Bennet Centro Commerciale Le Alpi | BeCharge
2,4 Km
Scuole Scuole
Scuola elementare
530 m
Scuola Elementare Beppe Fenoglio
2,1 Km
Scuola dell'Infanzia e Primaria “B. Ciari”
2,3 Km
ciac formazione
2,3 Km
Scuola Secondaria di I Grado “A. Viola”
2,6 Km
Farmacia Farmacia
Farmacia Spinerano
1,4 Km
Eden
1,8 Km
Farmacia dei lauri
1,8 Km
Farmacia
1,9 Km
Sant'Agostino
2,0 Km
Ospedali Ospedali
Ospedale Civile di Ciriè
1,9 Km
Supermercati Supermercati
Supermercato CRAI
1,1 Km
Negozi Negozi
CRAI Everydaymarket
2,0 Km
L'angolo di Lory
2,8 Km
I Monelli
2,9 Km
Bar Bar
Imperiale
3,0 Km
Ristoranti Ristoranti
Cooperativa di consumo
470 m
L'Oasi
1,6 Km
Ristorante Pizzeria Fontana
1,7 Km
Il Duca Bianco
2,4 Km
Mostra tutto

Caratteristiche

Rif.:
61153204
Piano:
3 di 3 (Piano su più livelli)
Posti auto:
8
Balconi:
1
Terrazzi:
2
Camere da letto:
2
Mostra tutto
Prezzo Prezzo
€ 237.000
Rata mutuo Rata mutuo
€ 1.126 / mese
Spese annue Spese annue
€ 0
Proponi il tuo prezzoProponi il tuo prezzo

Classe Energetica

Questo immobile è esente da classe energetica
Anno di costruzione:
2005
Riscaldamento:
Autonomo
Tipo impianto:
A radiatori
Tipo alimentazione:
Metano

Prezzo ridotto di €1 (5%%)

Ti interessa visionare l'immobile?

Fissa un appuntamento  Fissa un appuntamento

Richiedi informazioni

Clicca su Leggi per aprire l'informativa
* Questi campi sono obbligatori

Calcola il tuo mutuo

Semplice e senza impegno
Anticipo

( % )
Mutuo

( % )

pochi semplici passi

inserisci i tuoi dati
Questionario completato
Grazie per aver richiesto un appuntamento senza impegno con un nostro Consulente del Credito e Assicurativo.

Hai inserito correttamente tutti i dati necessari e a breve riceverai una e-mail con un link da convalidare per inviare i tuoi dati.
Affiliato
Gvr Immobiliare Sas
Via Circonvallazione, 23/A 10076 Nole (TO)

Il nostro staff


  • Guido Lo Drago
    Affiliato

  • Daniela Cat Genova
    Coordinatrice

  • Francesco Uneddu
    Collaboratore
Via Circonvallazione, 23/A 10076 Nole (TO)
Zona: Nole-San Carlo-Mathi-Barbania-Vauda
Mostra su mappa
Affiliato
Gvr Immobiliare Sas
Via Circonvallazione, 23/A 10076 Nole (TO)

2026 Tecnocasa Franchising S.p.A. - P. IVA 08365160152 - Via Monte Bianco 60/A 20089 Rozzano (MI). Ogni agenzia ha un proprio titolare ed è autonoma. Privacy policy | Policy utilizzo | Cookie policy