Casa semindipendente in vendita

San Carlo Canavese, Via dei Massa
€ 155.000
12 locali 12 locali
320 Mq 320 Mq
5 bagni 5 bagni

Casa semindipendente in vendita

San Carlo Canavese, Via dei Massa

Descrizione annuncio

In zona residenziale e a poca distanza dalla Piazza del Paese, antico cascinale libero su tre lati con ampio giardino privato di oltre 1100 mq collegato all'immobile.

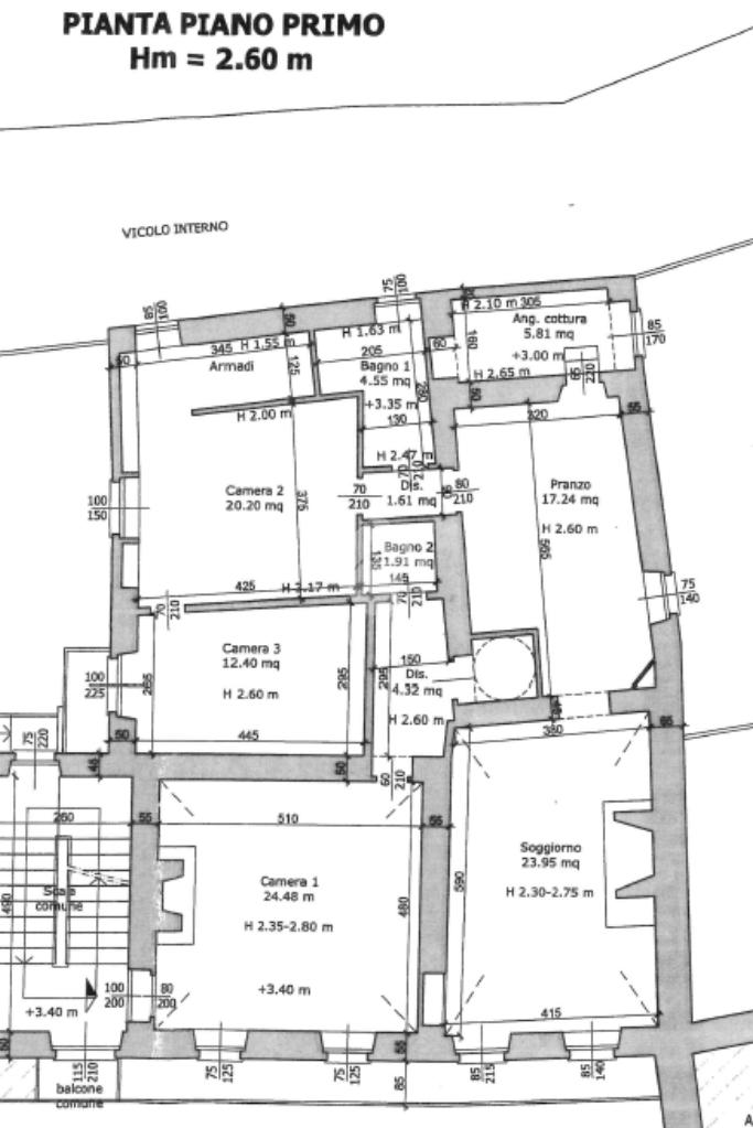
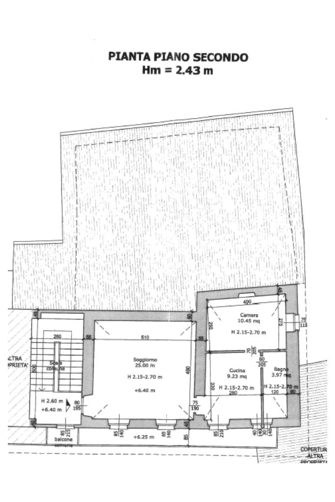
Disposto su tre livelli, attualmente si suddivide in tre unità abitative differenti ma risulta molto versatile, dati i suoi ampi spazi per ottenere tipologie residenziali di diverso tipo in base alle esigenze famigliari.

I tre piani sono già indipendenti tra loro grazie alla comoda scala in pietra e laddove fosse necessario unificare uno o più piani si può realizzare una scala interna come era già stato fatto in passato dagli attuali proprietari.

Buona occasione per famigie che hanno bisogno di spazio o per imprese e/o artigiani che vogliono investire sul proprio lavoro per rivendere o affittare generando così una rendita futura.

All'interno del giardino privato un basso fabbricato con forno a legna, utile anche come patio estivo per trascorrere momenti all'aria aperta.

Mostra tutto

Nelle vicinanze

Trasporto pubblico Trasporto pubblico
Ciriè
Ciriè
2,3 Km
Ciriè (P.za Castello)
Ciriè (P.za Castello)
1,6 Km
Ciriè (v. Braccini)
Ciriè (v. Braccini)
1,7 Km
Ricariche auto elettriche Ricariche auto elettriche
Bennet Centro Commerciale Le Alpi | BeCharge
2,6 Km
Scuole Scuole
Scuola elementare
380 m
Scuola dell'Infanzia e Primaria “B. Ciari”
1,9 Km
Scuola Elementare Beppe Fenoglio
1,9 Km
Scuola Secondaria di I Grado “A. Viola”
2,3 Km
ciac formazione
2,4 Km
Farmacia Farmacia
Farmacia Spinerano
1,2 Km
Farmacia
1,8 Km
Eden
1,8 Km
Sant'Agostino
1,8 Km
Farmacia De Magistris
2,0 Km
Ospedali Ospedali
Ospedale Civile di Ciriè
2,0 Km
Supermercati Supermercati
Supermercato CRAI
980 m
Penny Market
2,8 Km
Negozi Negozi
CRAI Everydaymarket
2,3 Km
Bar Bar
Imperiale
2,7 Km
Ristoranti Ristoranti
Cooperativa di consumo
360 m
L'Oasi
1,5 Km
Ristorante Pizzeria Fontana
1,6 Km
Il Duca Bianco
3,0 Km
Mostra tutto

Caratteristiche

Rif.:
61175721
Piano:
2 di 3 (Piano su più livelli)
Posti auto:
5
Balconi:
2
Camere da letto:
6
Arredamento:
Assente
Mostra tutto
Prezzo Prezzo
€ 155.000
Rata mutuo Rata mutuo
€ 736 / mese
Spese annue Spese annue
€ 0
Proponi il tuo prezzoProponi il tuo prezzo

Classe Energetica

E
E
E
E
E
E
E
E
E
EP globale non rinnovabile:
93.94 kW h/m² anno
EP globale rinnovabile:
21.32 kW h/m² anno
EP invernale del fabbricato:
EP estiva del fabbricato:
Anno di costruzione:
1920
Riscaldamento:
Autonomo
Tipo impianto:
A radiatori
Tipo alimentazione:
Metano

Ti interessa visionare l'immobile?

Fissa un appuntamento  Fissa un appuntamento

Richiedi informazioni

Clicca su Leggi per aprire l'informativa
* Questi campi sono obbligatori

Calcola il tuo mutuo

Semplice e senza impegno
Anticipo

( % )
Mutuo

( % )

pochi semplici passi

inserisci i tuoi dati
Questionario completato
Grazie per aver richiesto un appuntamento senza impegno con un nostro Consulente del Credito e Assicurativo.

Hai inserito correttamente tutti i dati necessari e a breve riceverai una e-mail con un link da convalidare per inviare i tuoi dati.
Affiliato
Gvr Immobiliare Sas
Via Circonvallazione, 23/A 10076 Nole (TO)

Il nostro staff


  • Guido Lo Drago
    Affiliato

  • Daniela Cat Genova
    Coordinatrice

  • Francesco Uneddu
    Collaboratore
Via Circonvallazione, 23/A 10076 Nole (TO)
Zona: Nole-San Carlo-Mathi-Barbania-Vauda
Mostra su mappa
Affiliato
Gvr Immobiliare Sas
Via Circonvallazione, 23/A 10076 Nole (TO)

2026 Tecnocasa Franchising S.p.A. - P. IVA 08365160152 - Via Monte Bianco 60/A 20089 Rozzano (MI). Ogni agenzia ha un proprio titolare ed è autonoma. Privacy policy | Policy utilizzo | Cookie policy